$370.000.000

Casa en La Aldea – La Ceja – 264616

76m2

2 Habitaciones

2 Baños

0

1

76m2

2 Hab

2 Baños

0

1

Características

Descripción

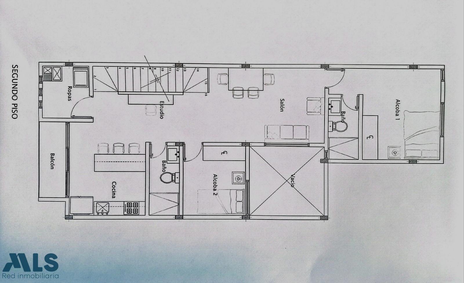
Se venden casa bifamiliar en el barrio la aldea en La Ceja. EN PROCESO DE CONSTRUCCIÓN. ENTREGA EN JUNIO 2026 Matriculas independientes en proceso de desenglobe. Distribución y precios: PISO 1: 76,81m2 primer piso: área construida 70,36 y área libre 6,45 (patio): 2 habitaciones, 2 baños, cocina abierta con isla, salón comedor, garaje y patio. PRECIO $370.000.000 PISO 2: 126,2m2 construidos: 79,39 piso 2 con 2 habitaciones, principal con baño y closet y baño social, salón comedor cocina abierta con isla, zona de ropas y balcón, sin parqueadero. loza de 46,83 que permite construcción en el tercer nivel. PRECIO $390.000.000

Ubicación

Comparar

Compartir

Asesor inmobiliario

Agente 1

El dandy

Diligenciar el formato FVE-06 (Formato de Ventas FVE-06) en la parte del propietario y firmarlo (este formato se envía cuando el asesor realiza la toma de comodidades del inmueble).

Firmar el contrato de corretaje simple.

Anexar copia de la cédula del y/o los propietarios.

Anexar Certificado de libertad y tradición del inmueble no mayor a 30 días.

Anexar del impuesto predial del inmueble actualizado.

Anexar de la última factura de servicios públicos (EPM).

Nota: estos documentos los puedes enviar PDF al número de WhatsApp 300 4479100

Propiedades Similares

Inicia sesión o regístrate

Favoritos

Alertas

Visitas